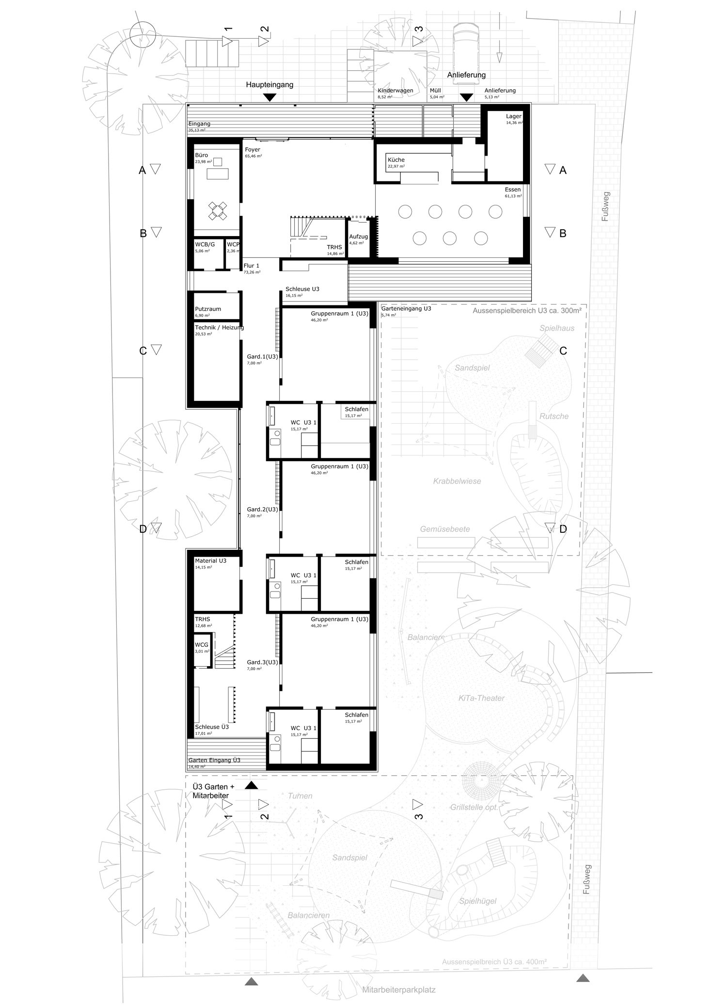
Kindertagesstätte

2022

 

79348 Freiamt

Bauherr Gemeinde Freiamt

Neubau 6-gruppiger Kindergarten

 

1. Preis